Jump to content

Båten min: "Tindra", en Maxi 68


Korsfjord

Recommended Posts

Tenkte å starte en tråd der jeg samler alt jeg sysler med og grubler på i forbindelse med min nyanskaffede båt. 

 

Jeg hadde egentlig ikke tenkt å skaffe meg seilbåt enda. Når man forsørger to barn alene på èn høyst middelmådig inntekt, og man bor i en tilårskommen enebolig, mangler egentlig både tid og penger. Rana 17-prosjektet mitt, som jeg hadde for noen år siden, måtte gis opp da det stadig var andre ting som burde prioriteres. Jeg kjøpte en 14 fots landstedsbåt, og tenkte at det fikk holde, slik situasjonen var, så fikk det bli seilbåt når tiden var moden. Men en 14-foter har klare begrensinger i bruk, og båtlivet ble egentlig ganske kjedelig. Dessuten solgte jeg i mellomtiden eneboligen og flyttet inn i en flett ny leilighet, som både er billig i drift og ikke minst mye mindre arbeidskrevende. Og da en god venn ble alvorlig syk og senere døde, tenkte jeg i sorgen at man skal ikke ta for gitt at man holder seg frisk. Hvis jeg skal være sikker på å få seilt med egen skute, må båt skaffes nå, med de midlene som er til rådighet. Større båtplass ordnet seg til slutt, og jeg kom i kontakt med en hyggelig ung mann som skulle kvitte seg med sin Maxi 68. Etter litt frem og tilbake ble det handel! Prisene på disse båtene er lave, og denne var intet unntak. Så å skaffe seg en seilklar båt trenger absolutt ikke å være dyrt, om man kan gi avkall på komfort og skinnende ny gelcoat. 

 

Litt om båten: Maxi 68 er fra Maxibåtene sin storhetstid på 70-og 80-tallet. Storselgeren Maxi 77 hadde vært på markedet noen år, men prisen hadde steget til over 50k, og konstruktøren Pelle Petterson så behovet i markedet for et billigere alternativ. Maxi 68 ble dermed lansert i 1976. Den fulgte Maxi-konseptet med enkle, men solide og brukervennnlige løsninger. Frem til 1981 (tror jeg) ble de produsert i over 1200 eksemplarer. Min båt ser ut til å være byggnummer 27, altså en av de første. På masten er det klistret et merke der det står "Gräddö gästhamn", og i cabinen er det klistret opp sjøvettsreglene på svensk. Det kan dermed se ut som båten var hjemmehørende i Sverige de første årene. Båten har nok hatt en del eiere opp gjennom tidene, jeg er minst eier nummer tre etter at den ble vestlending. Mer vet jeg ikke. Hadde vært artig å finne ut mer om historikken, men det er nok vanskelig. 

20250927_140620.jpg.6b86716d5332daa7c53ff2a089a492a4.jpg

 

Båten heter i dag "Wichmann", et navn forrige eier hadde "arvet" og ikke visste bakgrunnen til. Selv om navnet absolutt har en maritim schwung, så var det enighet i familien om navneendring. Jeg hadde egentlig et navn på lur som jeg hadde tenkt å bruke, men barna var uenige. Datteren fant fram ChatGPT, som foreslo en mengde mer eller mindre gode navn, men "Tindra" var et navn vi alle kunne enes om. Så da ble det valgt! Slik har barna allerede fått sette sitt preg på båten. 

 

Båten kan seiles som den er, så jeg skal ikke bare holde på med fiksing og oppussing, den skal hele tiden kunne gi fine opplevelser på sjøen. samtidig skal den fungere som en "læringsplatform" der jeg kan prøve meg på ulike utfordringer på veien mor å bli mer praktisk anlagt, er tanken. 

 

Som nesten alle andre gamle båter er det slitasje og mer eller mindre gode installasjoner og løsninger ombord. Det mest slående i min båt er dørken og benkene i cabinen, der det var malt med en maling som flasser heftig. Jeg begynte å skrape, og det meste kom lett av. Det var tydelig det ikke var gjort noe som helst forarbeid, ikke en gang rengjøring, for det var ganske skittent flere steder under malingen.20251004_150535.jpg.ab4298b5fb754f3f5a81422d27a4dbe1.jpg Spørsmål nå: hvilken maling burde jeg gå for her i cabinen, bør jeg satse på tokomponent, eller kan en enkomponents maling være slitesterk nok? Tar gjerne i mot tips til type maling her. Og rengjøring: vil noen husholdningsmidler gi godt nok grunnlag for ny maling? 

 

FF

 

 

Link to post

Salmiakkvann med ørlite Zalo i fjerner det meste av fett og dritt. Bruk kaldt vann, så lukter det ikke så ille. Om du ikke vet om det er brukt 1K eller 2K før så ville jeg ha gått for 1K. Så unngår du koking og flassing. Men du kan jo teste noen flekker med 2K da, og se om det funker. Den er jo absolutt mer slitesterk. 

"First they ignore you, then they ridicule you, then they fight you, then you win." - Mahatma Gandhi
Link to post
index skrev 50 minutter siden:

Salmiakkvann med ørlite Zalo i fjerner det meste av fett og dritt. Bruk kaldt vann, så lukter det ikke så ille. Om du ikke vet om det er brukt 1K eller 2K før så ville jeg ha gått for 1K. Så unngår du koking og flassing. Men du kan jo teste noen flekker med 2K da, og se om det funker. Den er jo absolutt mer slitesterk. 

Takk for tips, begge to😊

Aner ikke hvilken maling som er brukt, selger visste heller ikke. Men malingen sitter så løst at jeg vil prøve å fjerne alt. På dørken er det meste fjernet nå, bortsett fra en million prikker av maling som sitter nede i porene. Disse har jeg tro på at går lett av med sandpapir, ettersom malingen sitter så løst. Klarer jeg å fjerne alt, vil det nok gå bra med tokomponent maling. Dette er jo den sonen i båten der man trakker "hele tiden", så slitestyrke er viktig.

Link to post

Ja, 2K er absolutt det mest slitesterke. Jeg sjekket med Jotun da jeg kjøpte båten for 20 år siden, om jeg kunne bruke 2K over det som mest sannsynlig er gammel 1K på skroget. De mente at om 1K var gammel og godt gjennomherdet så ville det mest sannsynlig gå bra. Det ble aldri gjort i mitt tilfelle da, båten er liksom aldri på land lenge nok til å få gjort jobben. Men sannsynligheten for at det hadde gått bra tror jeg er stor...

"First they ignore you, then they ridicule you, then they fight you, then you win." - Mahatma Gandhi
Link to post

Fikk anledning til å teste klutene en kort tur i dag. Forsiktig seilføring med minste forseil og urevet storseil. Tenkte det var det greieste når jeg ikke har seilt på mange år, og tenåringen som var mannskap hadde sitt livs første seiltur. Angret ikke på det, vinden tok godt da vi kom litt unna land, hjemmehavnen lå litt i le for vinden i dag. Var likevel oppe i nesten 6 knop på det meste, ifølge Skippo. 

Noterer meg at seilene mangler lus, og at fallene kanskje burde bytte plass, det er vel mer bruk for vinsj til storseilet enn til  forseilet🤔 Men planen er uansett å føre fallene bak til cockpit,  og da vil de få hver sin vinsj uansett. 

Storseilskjøtet er helt, men godt brukt. Skal nok byttes, men lurer litt på hvor mye det haster. 

20251008_142721.jpg

20251008_150839.jpg

Link to post

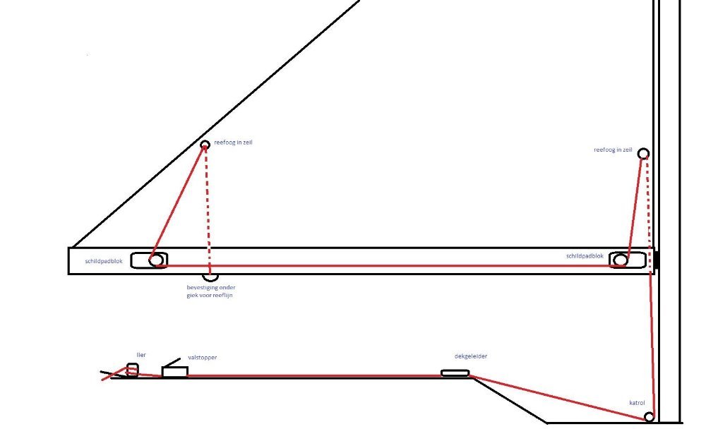
Jeg vet ikke hvordan det tradisjonelt er gjort på Maxi 68, men den mest vanlige måten ser du på bildet under. Føres til en vinsj/kryssholt på bom, mast eller cockpit. På fremliket er det som oftest maljer som man kroker i en revekrok. Du kan også vurdere single line reef (gjør et Google søk) 

image.png.153de95f411982bb926b3297de0e7963.png.07fe7e4f4326cf71d90fe64a1d483522.png

 

Jeg er en slags gjest

Link to post

Har kikket litt på single line reefing (dette har kanskje et norsk navn også?). Kom over denne tegningen, som ser ganske grei ut med mitt utrente øye. Har ingen erfaring med dette fra før. Seilbåten jeg hadde en kort periode for mange år siden hadde et gammeldags system med "seisinger", altså en "lisse" til hver av en rekke små maljer som satt et stykke opp på seilet.

Her er den tegningen jeg bet meg merke i da jeg søkte litt på nettet: 

9726764.jpg.306004f01b86811365efe91d9f56a430.jpg

Link to post
Korsfjord skrev On 5.10.2025 at 10.16:

Tenkte å starte en tråd der jeg samler alt jeg sysler med og grubler på i forbindelse med min nyanskaffede båt. 

 

Jeg hadde egentlig ikke tenkt å skaffe meg seilbåt enda. Når man forsørger to barn alene på èn høyst middelmådig inntekt, og man bor i en tilårskommen enebolig, mangler egentlig både tid og penger. Rana 17-prosjektet mitt, som jeg hadde for noen år siden, måtte gis opp da det stadig var andre ting som burde prioriteres. Jeg kjøpte en 14 fots landstedsbåt, og tenkte at det fikk holde, slik situasjonen var, så fikk det bli seilbåt når tiden var moden. Men en 14-foter har klare begrensinger i bruk, og båtlivet ble egentlig ganske kjedelig. Dessuten solgte jeg i mellomtiden eneboligen og flyttet inn i en flett ny leilighet, som både er billig i drift og ikke minst mye mindre arbeidskrevende. Og da en god venn ble alvorlig syk og senere døde, tenkte jeg i sorgen at man skal ikke ta for gitt at man holder seg frisk. Hvis jeg skal være sikker på å få seilt med egen skute, må båt skaffes nå, med de midlene som er til rådighet. Større båtplass ordnet seg til slutt, og jeg kom i kontakt med en hyggelig ung mann som skulle kvitte seg med sin Maxi 68. Etter litt frem og tilbake ble det handel! Prisene på disse båtene er lave, og denne var intet unntak. Så å skaffe seg en seilklar båt trenger absolutt ikke å være dyrt, om man kan gi avkall på komfort og skinnende ny gelcoat. 

 

Litt om båten: Maxi 68 er fra Maxibåtene sin storhetstid på 70-og 80-tallet. Storselgeren Maxi 77 hadde vært på markedet noen år, men prisen hadde steget til over 50k, og konstruktøren Pelle Petterson så behovet i markedet for et billigere alternativ. Maxi 68 ble dermed lansert i 1976. Den fulgte Maxi-konseptet med enkle, men solide og brukervennnlige løsninger. Frem til 1981 (tror jeg) ble de produsert i over 1200 eksemplarer. Min båt ser ut til å være byggnummer 27, altså en av de første. På masten er det klistret et merke der det står "Gräddö gästhamn", og i cabinen er det klistret opp sjøvettsreglene på svensk. Det kan dermed se ut som båten var hjemmehørende i Sverige de første årene. Båten har nok hatt en del eiere opp gjennom tidene, jeg er minst eier nummer tre etter at den ble vestlending. Mer vet jeg ikke. Hadde vært artig å finne ut mer om historikken, men det er nok vanskelig. 

20250927_140620.jpg.6b86716d5332daa7c53ff2a089a492a4.jpg

 

Båten heter i dag "Wichmann", et navn forrige eier hadde "arvet" og ikke visste bakgrunnen til. Selv om navnet absolutt har en maritim schwung, så var det enighet i familien om navneendring. Jeg hadde egentlig et navn på lur som jeg hadde tenkt å bruke, men barna var uenige. Datteren fant fram ChatGPT, som foreslo en mengde mer eller mindre gode navn, men "Tindra" var et navn vi alle kunne enes om. Så da ble det valgt! Slik har barna allerede fått sette sitt preg på båten. 

 

Båten kan seiles som den er, så jeg skal ikke bare holde på med fiksing og oppussing, den skal hele tiden kunne gi fine opplevelser på sjøen. samtidig skal den fungere som en "læringsplatform" der jeg kan prøve meg på ulike utfordringer på veien mor å bli mer praktisk anlagt, er tanken. 

 

Som nesten alle andre gamle båter er det slitasje og mer eller mindre gode installasjoner og løsninger ombord. Det mest slående i min båt er dørken og benkene i cabinen, der det var malt med en maling som flasser heftig. Jeg begynte å skrape, og det meste kom lett av. Det var tydelig det ikke var gjort noe som helst forarbeid, ikke en gang rengjøring, for det var ganske skittent flere steder under malingen.20251004_150535.jpg.ab4298b5fb754f3f5a81422d27a4dbe1.jpg Spørsmål nå: hvilken maling burde jeg gå for her i cabinen, bør jeg satse på tokomponent, eller kan en enkomponents maling være slitesterk nok? Tar gjerne i mot tips til type maling her. Og rengjøring: vil noen husholdningsmidler gi godt nok grunnlag for ny maling? 

 

FF

 

 

 

Allerede nevnte Biltema sin 2K maling fungerer fint. Er ikke området du skal male slett, men har spisse/skarpe kanter etc så dra fort over med en slipemaskin først.

Link to post
Torsen67 skrev 3 minutter siden:

 

allerede Biltema sin 2K maling fungerer fint. Er ikke området du skal male slett, men har spisse/skarpe kanter etc så dra fort over med en slipemaskin først.

Når det gjelder maling, så har jeg ikke bestemt meg helt enda. Vet ikke om malingen som har vært brukt var 2-k, og da må all gammel maling fjernes for å være helt sikker på å unngå "koking". Mye er fjernet, men jeg gikk tom for malingfjerner, og det har i alle fall vært malt med to ulike farger. Mye av malingen som gjenstår er nede i "porene" i gelcoaten. Tar en runde eller to til med malingfjerner, hvis jeg da ikke får det rent, maler jeg med enkomponent, tror jeg. 

Link to post

@Korsfjord Revesystemet du viser over funker fint det. Det vanligste er at det er blokker i enden av bommen ala slik: 

 

image.jpeg.fd8b8d5378afb3b4446c7253e27b3e1c.jpeg

 

Men det finnes også sett som man fester på hver side av bommen. Jeg mener Barton solgte et slikt sett:

 

image.jpeg.a814de8cf8972dd413c94593383e62ce.jpeg

 

Når du kommer til feste av revelinen på bommen ville jeg bare brukt øyet på bommen som et ledeøye. Selve revelina burde bindes rundt bomprofilen for å fordele kreftene bedre, som illustrert her:

 

image.jpeg.c718c7f879148d04a24d1ba3b39cdfaf.jpeg

 

 

Link to post

Delta i diskusjonen

Du kan skrive innlegget nå, det vil bli postet etter at du har registrert deg. Logg inn hvis du allerede er registrert.

Guest
Svar på dette emnet

×   Du har postet formatert tekst..   Fjern formattering

  Only 75 emoji are allowed.

×   Innholdet du linket til er satt inn i innlegget..   Klikk her for å vise kun linken.

×   Det du skrev har blitt lagret.   Slett lagret

×   You cannot paste images directly. Upload or insert images from URL.

×
×
  • Create New...